Schron betonowy prefabrykowany
Hobbit House
HOBBIT HOUSE to modułowe, prefabrykowane żelbetowe obiekty ochronne typu FORTECA, przeznaczone do szybkiej instalacji (montaż w 1 dzień) na obiektach infrastruktury państwowej i komunalnej: szkoły i przedszkola, szpitale, budynki administracyjne, obiekty infrastruktury krytycznej, węzły transportowe, miejsca masowego przebywania ludzi.
Gwarancja na montaż: 12 miesięcy. Przewidywany okres eksploatacji obiektów: ponad 15 lat.
Podstawowe cechy obiektów typu FORTECA
Wyjątkowa konstrukcja dla maksymalnego bezpieczeństwa
Obiekty FORTECA to modułowe schrony o żelbetowych ścianach i łukowym stropodachu grubości 300 mm (beton C40/50). Wysokość wnętrz przekracza 2,81 m, co zapewnia komfort użytkowania. Zbrojenie w trzech siatkach z dodatkową siatką przeciwodpryskową minimalizuje wtórną fragmentację, chroniąc przed odłamkami o masie do 400 g, rozmiarze do 50 mm i prędkości do 1000 m/s.
Potwierdzona odporność w testach poligonowych
FORTECA przetrwała próby naziemne z falą uderzeniową: 100 kPa, 300 kPa i 500 kPa (po 3 wybuchy z każdej strony – protokół badań udostępnimy na życzenie). Ostrzeliwania różnymi typami uzbrojenia, zapewnia ochronę przed zawaleniem, spadającymi elementami i innymi czynnikami bojowymi. Modelowanie matematyczne potwierdza nośność całej konstrukcji (opinia ekspercka i raport techniczny do wglądu).
Optymalna dystrybucja obciążeń
Przypory i aerodynamiczny łukowy stropodach rozpraszają siły od pocisków i fal uderzeniowych – fale opływają obiekt, zamiast go niszczyć.
Sprawdzone w praktyce – setki instalacji w Ukrainie. Liczne obiekty FORTECA chronią ludność cywilną i personel wojskowy w kluczowych miejscach: przedsiębiorstwa komercyjne, instytucje państwowe, zakłady obronne, sektory gazowo-naftowy i rolny, centra handlowe, przystanki komunikacji miejskiej oraz miejsca masowego przebywania ludzi.
Dlaczego FORTECA?
- Pełna ochrona CBRN i balistyczna.
- Szybki montaż modułowy.
- Dokumentacja atestów na żądanie.
Personalizacja / Dostosowanie
Każdy z oferowanych przez nas schronów jest w pełni modyfikowalny na etapie projektowym, tak aby spełnić Państwa wymagania dotyczące wykończenia i wyposażenia.
Przykładowe warianty
Typ: modułowy prefabrykowany obiekt żelbetowy (3 moduły).
Wymiary (dł. × wys. × szer.): 15,33 × 3,11 × 5,23 m – wymiary konstrukcji; 16,0 × 6,0 m – wymiary płyt podłogowych.
Powierzchnia chroniona: 37,1 m² (bez uwzględnienia powierzchni przedsionków).
Zakres dostawy: płyty podłogowe, zestaw modułów żelbetowych, drzwi, transport, montaż podłogi, montaż konstrukcji, montaż drzwi.
Materiały i parametry: beton C40/50.
Ściany: prefabrykowane wielkogabarytowe bloki żelbetowe typu FBS o grubości 300 mm.
Stropodach (dach): żelbetowy element typu FBD o łukowym kształcie, grubość 300 mm oraz czołowe ściany podporowe 300 mm.
Ściany oporowe (przypory): elementy o grubości 300 mm, integrujące całą konstrukcję.
Zbrojenie: zbrojenie trzema siatkami zbrojeniowymi ze stalą A500C, Ø12, z dodatkowym zbrojeniem przeciwodpryskowym siatką Ø2 o rozstawie 40 mm od strony wewnętrznej.
Otwory wentylacyjne i inne technologiczne: zgodnie z wymaganiami Zamawiającego.
Opcjonalnie:
● wykończenie (instalacja elektryczna i wentylacja, klimatyzacja, organizacja strefy sanitarnej, miejsca siedzące, malowanie wewnętrzne, gaśnice, apteczka);
● inne wymagania Zamawiającego dotyczące wykończenia.
Typ: modułowy prefabrykowany obiekt żelbetowy (9 modułów).
Wymiary (dł. × wys. × szer.): 43,53 × 3,11 × 5,23 m – wymiary konstrukcji; 46,0 × 6,0 m – wymiary płyt podłogowych.
Powierzchnia chroniona: 135,8 m² (bez uwzględnienia powierzchni przedsionków).
Zakres dostawy: płyty podłogowe, zestaw modułów żelbetowych, drzwi, transport, montaż podłogi, montaż konstrukcji, montaż drzwi.
Materiały i parametry: beton C40/50.
Ściany: prefabrykowane wielkogabarytowe bloki żelbetowe typu FBS o grubości 300 mm.
Stropodach (dach): żelbetowy element typu FBD o łukowym kształcie, grubość 300 mm oraz czołowe ściany podporowe 300 mm.
Ściany oporowe (przypory): elementy o grubości 300 mm, integrujące całą konstrukcję.
Zbrojenie: zbrojenie trzema siatkami zbrojeniowymi ze stali A500C, Ø12, z dodatkowym zbrojeniem przeciwodpryskowym siatką Ø2 o rozstawie 40 mm od strony wewnętrznej.
Otwory wentylacyjne i inne technologiczne: zgodnie z wymaganiami Zamawiającego.
Opcjonalnie:
● wykończenie (instalacja elektryczna i wentylacja, klimatyzacja, organizacja strefy sanitarnej, miejsca siedzące, malowanie wewnętrzne, gaśnice, apteczka);
● inne wymagania Zamawiającego dotyczące wykończenia.

Typ: modułowy prefabrykowany obiekt żelbetowy (3 moduły).
Wymiary (dł. × wys. × szer.): 15,33 × 3,20 × 7,73 m – wymiary konstrukcji; 18,0 × 8,0 m – wymiary płyt podłogowych.
Powierzchnia chroniona: 81,6 m².
Zakres dostawy: płyty podłogowe, zestaw modułów żelbetowych, drzwi, transport, montaż podłogi, montaż konstrukcji, montaż drzwi.
Materiały i parametry: beton C40/50.
Ściany: prefabrykowane wielkogabarytowe bloki żelbetowe typu FBS o grubości 300 mm.
Stropodach (dach): żelbetowy element typu FBD o łukowym kształcie, grubość 300 mm oraz czołowe ściany podporowe 300 mm.
Ściany oporowe (przypory): elementy o grubości 300 mm, integrujące całą konstrukcję.
Zbrojenie: zbrojenie trzema siatkami zbrojeniowymi ze stali A500C (min. Ø12) z dodatkowym zbrojeniem przeciwodpryskowym siatką Ø2 o rozstawie 40 mm od strony wewnętrznej.
Otwory wentylacyjne i inne technologiczne: zgodnie z wymaganiami Zamawiającego.
Ta konstrukcja może być również wykorzystana jako element bazowy przy projektowaniu obiektów podziemnych (ukryć lub schronów). Istnieje także podobna konstrukcja naziemna FORTECA 6.0 3XL przeznaczona do ochrony ludzi.
Opcjonalnie:
● wykończenie (instalacja elektryczna i wentylacja, klimatyzacja, organizacja strefy sanitarnej, miejsca siedzące, malowanie wewnętrzne, gaśnice, apteczka);
● inne wymagania Zamawiającego dotyczące wykończenia.

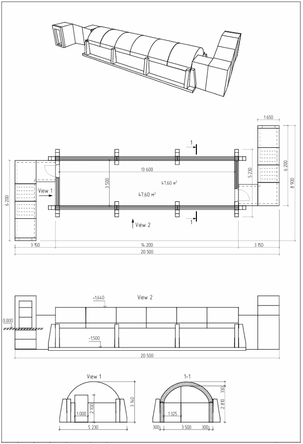
Typ: modułowy prefabrykowany obiekt żelbetowy (3 moduły).
Wymiary (dł. × wys. × szer.): 20,5 × 2,81 × 8,9 m – wymiary konstrukcji.
Powierzchnia chroniona: 47,6 m².
Zakres dostawy: wykop, płyty podłogowe, zestaw modułów żelbetowych, biegi schodowe, drzwi, transport, montaż podłogi, montaż konstrukcji, montaż drzwi, hydroizolacja obiektu, zasypanie wykopu.
Materiały i parametry: beton C40/50.
Ściany: prefabrykowane wielkogabarytowe bloki żelbetowe typu FBS o grubości 300 mm.
Stropodach (dach): żelbetowy element typu FBD o łukowym kształcie, grubość 300 mm oraz czołowe ściany podporowe 300 mm.
Ściany oporowe (przypory): elementy o grubości 300 mm, integrujące całą konstrukcję.
Zbrojenie: zbrojenie trzema siatkami zbrojeniowymi ze stali A500C, Ø12, z dodatkowym zbrojeniem przeciwodpryskowym siatką Ø2 o rozstawie 40 mm od strony wewnętrznej.
Otwory wentylacyjne i inne technologiczne: zgodnie z wymaganiami Zamawiającego.
Opcjonalnie:
● montaż podziemny;
● wykończenie (instalacja elektryczna i wentylacja, klimatyzacja, organizacja strefy sanitarnej, miejsca siedzące, malowanie wewnętrzne, gaśnice, apteczka);
● odwodnienie; inne wymagania Zamawiającego dotyczące wykończenia.
