Schron rurowy
Przedstawiamy Nasz produkt – Schron rurowy oferowany przez Shelters.pl. Jest to zaawansowane technologicznie rozwiązanie, stworzone z myślą o zapewnieniu bezpieczeństwa w różnorodnych sytuacjach kryzysowych. Projekt i realizacja powstała we współpracy z firmą ViaCon. Został zaprojektowany z wyjątkową dbałością o najwyższe standardy ochrony. Dodatkowo, cechuje się komfortem użytkowania, doskonale spełnia wymagania nawet najbardziej wymagających użytkowników. Co więcej, oferuje także elastyczność poprzez możliwość dostosowania wnętrza do indywidualnych potrzeb, co czyni go idealnym wyborem zarówno dla osób prywatnych, jak i instytucji szukających kompleksowych rozwiązań w zakresie ochrony.
Kluczowe cechy i funkcjonalności
- Wysokość użytkowa: 2,3 metra, zapewniająca swobodę poruszania się i komfort wewnątrz.
- Długość kabiny mieszkalnej: 6 – 15 metrów bieżących, umożliwiająca zakwaterowanie kilku osób.
- Konstrukcja zawiera miejsca na przyłącza i systemy techniczne.
- Możliwość konfiguracji jako podziemny oraz nadziemny
Bezpieczeństwo i wyposażenie
- Wyposażony w certyfikowane drzwi gazoszczelne i wodoszczelne, a także włazy odporne na wybuchy, gwarantujące izolację od zewnętrznych zagrożeń.
- System filtrowentylacji Arconik oraz filtry renomowanej firmy Atmas, zapewniające ochronę przed zagrożeniami nuklearnymi, biologicznymi i chemicznymi (NBC).
Trwałość i wytrzymałość
- Ocynkowana skorupa zewnętrzna chroni przed korozją, zapewniając trwałość konstrukcji.
- Konstrukcja może być wzmacniana zbrojonym betonem
- Możliwość zakopania schronu na głębokości do 6 metrów, co zwiększa jego odporność na eksplozje i inne zagrożenia zewnętrzne.
Schron rurowy zastosowanie
Nasze schronienie to idealne rozwiązanie dedykowane prywatnym posesjom, zapewniające łatwy i szybki dostęp w różnorodnych sytuacjach kryzysowych. Dzięki modułowej i wszechstronnej budowie może ono pełnić funkcję nie tylko schronienia, ale również dodatkowej przestrzeni użytkowej, takiej jak magazyn czy warsztat. Co więcej, schron ten doskonale sprawdzi się jako miejsce rekreacyjne, na przykład w formie kina domowego, dostarczając komfort i funkcjonalność w każdej sytuacji.
Shelters.pl oferuje innowacyjne i zaawansowane rozwiązania techniczne, które nie tylko podnoszą poziom bezpieczeństwa, ale także zapewniają długowieczność inwestycji, czyniąc ją wyjątkowo opłacalną i niezawodną na przestrzeni lat.
Personalizacja / Dostosowanie
Każdy z oferowanych przez nas schronów jest w pełni modyfikowalny na etapie projektowym, tak aby spełnić Państwa wymagania dotyczące wykończenia i wyposażenia.
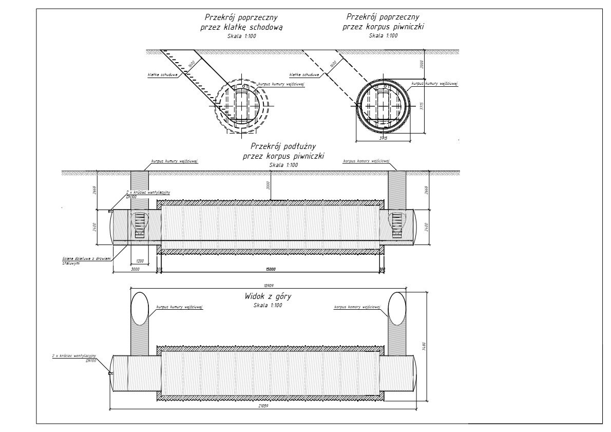
Wymiary i rysunki techniczne
Wymiary wewnętrzne: 3,00 m x 6,00 m
Taki schron to optymalne schronienie dla 6 osób.
Rysunek techniczny: (kliknij, żeby otworzyć w pełnej rozdzielczości)

Wymiary wewnętrzne: 3,00 m x 10,00 m
Taki schron to komfortowe schronienie dla 6 osób.
Rysunek techniczny: (kliknij, żeby otworzyć w pełnej rozdzielczości)

